Les Sentiers de Gros Bois Phase 2, une adresse résidentielle au coeur de Savannah
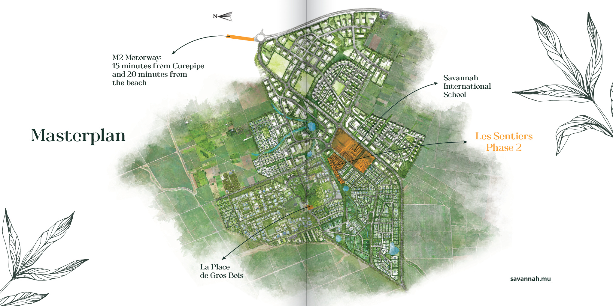
Les Sentiers Phase 2 est un morcellement résidentiel développé dans l'environnement de Savannah, à Gros Bois. Le programme propose 28 terrains de grande taille, prêts à accueillir des maisons individuelles dans un cadre cohérent et verdoyant.
Le projet s'adresse aux familles et investisseurs qui souhaitent construire à leur rythme, avec un cahier des charges conçu pour préserver l'harmonie du quartier : implantation, clôtures, toitures, hauteur et délais de construction sont encadrés.

Pourquoi s'intéresser aux terrains Les Sentiers Phase 2 à Savannah ?
Un emplacement résidentiel établi dans le Sud
Savannah et Gros Bois se sont imposés comme une destination résidentielle recherchée du Sud mauricien. Le projet profite d'un environnement déjà structuré, avec des accès routiers, des services de proximité et une vraie logique de quartier.
Des terrains de grande taille pour construire une maison sur mesure
Les lots de la phase 2 couvrent des surfaces indicatives de 572 à 1 099 m², soit environ 14 à 26 perches. Cette amplitude permet d'envisager plusieurs projets de vie : maison familiale, résidence principale ou investissement patrimonial.
Un cahier des charges pour protéger la cohérence du projet
Les spécifications annoncées prévoient notamment une construction dans les 5 ans, une hauteur maximale de 8,5 m, un étage, une emprise encadrée et des règles sur les clôtures et toitures.
Recevez la brochure
complète Les Sentiers Phase 2
Plans, surfaces, cahier des charges, prix indicatifs et disponibilités transmis directement par notre équipe.
- 28 terrains résidentiels freehold à Savannah / Gros Bois
- Lots de 572 à 1 099 m² selon grille promoteur
- Prix et statuts actualisés avant toute projection
- Accompagnement personnalisé sans engagement
Accédez à la documentation complète
Demande bien reçue
Notre équipe vous envoie la brochure Les Sentiers Phase 2 dans les plus brefs délais.
Vérifiez également vos spams.
Quel type de terrain choisir aux Sentiers Phase 2 ?
La page présente le projet dans son ensemble. Les exemples ci-dessous servent à comprendre les formats de lots, sans figer les disponibilités.

Des terrains pour construire une maison fonctionnelle à Savannah
Les formats les plus compacts de la phase 2 permettent de viser une maison familiale bien pensée, avec jardin, terrasse et espaces extérieurs maîtrisés.

Une adresse pensée pour une vraie vie de quartier
Les lots intermédiaires offrent un équilibre intéressant entre surface de terrain, confort extérieur et budget, au coeur de Savannah.

Des parcelles plus généreuses pour un projet sur mesure
Les plus grandes parcelles permettent d'envisager une maison plus ambitieuse, avec davantage de recul, de végétation et de respiration.

Un cadre architectural pour préserver l'harmonie du morcellement
Le promoteur annonce des spécifications destinées à protéger l'identité du quartier : matériaux de toiture, clôtures, emprise, hauteur maximale et délai de construction.



